本期《大咖帮帮手》,网易家居&索菲亚家居邀请到行业协会高级室内设想师、天津卫视《幸福抵家》十大优良设想师、AI结合设想设想总监计伟灵教员为你揭秘室内设想师的空间规划法例,让有设想界“阿计米德”之称的的计教员来教你若何提拔空间率、打制“零鸡肋”居家!
![]()
这套房子的业从是一对80后情侣,男仆人是幕墙设想师,持久正在外埠工做;女仆人是多才多艺的DJ,正在当地工做,常日里乐趣快乐喜爱良多,喜好阅读喜好跳舞,当然还少不了女人的本性——爱美。设想师为小两口设想的新家里,不只温暖,还充满了各类各样的小心思:意味幸福的墙绘、活跃灵动的嵌入式鱼缸、能够充任房的次卧、衣柜里的打扮台……小小家里承载着无限的创意和欣喜!
调整后的平面结构:能够看到有了玄关,能储藏良多鞋子;餐厅有了吧台的功能,添加了糊口感;从卧室添加一个衣帽柜,侧面考虑到将来可能需要放儿童床,于是采用家具;卫生间内利用长方形的淋浴房,空出的距离可放洗衣机。
我们经手的每个案子,业从城市有,有些是但愿改善之前栖身习惯,有些是有本人的等候,有一些是但愿设想师能满脚一些功能需求....等等,可是良多客户其实并不晓得的是他们买的房子事实能帮他们做什么,房子本身能阐扬的最大极限是什么。这就比如说5吨的货车最大能载沉5吨,10吨的货车最大能载沉10吨,这就是极限,货车载沉是有标注的,可是房子的功能和舒服性倒是没有标注的。它是需要设想师去开辟的。
这是一套室内65平米两房一厅一卫 ,带一个20平米院子的室第,院子四周围墙隔起,顶面全封阳光房,房子的仆人是一对年轻夫妻,常日工做比力忙碌,因而但愿回抵家就是回到了本人自正在的六合,正在家做饭的几率很少,5年内临时不会考虑要孩子,若是未来考虑要孩子会把这套房子留给父母栖身,本人换一套大一些的房子。父母有本人的房子因而不常来,也不会来留宿。女仆人喜好看书品茗很神驰有个周末能晒晒太阳,看看书,听听音乐光阴的书吧。男的喜好熬炼,需要一台跑步机 。
那我们试想,由于业从做饭几率很小,其实这个厨房的功能更多可能是用来煮面、做咖啡、榨果汁、烘培等等这些取休闲相关的功课,那么它们其实有没有燃气并不主要,有一个电磁炉一样能够处理问题,若是能将这个区域搬到阳台,这里留给卫生间做拓展区域会不会是一举两得的设法?
![]()
![]()
从这个阐发图上能够看出次要的功能区域都能够被天然光影响到,更值得留意的以至是天然光线的强弱程度能影响到的范畴。室内设想师正在构想平面结构的时候也会有考虑到好比衣柜区域(天然光线下衣服的颜色色差小)、打扮台(打扮需要的光线)、穿衣镜的(正在人坐立的上,面部以及是能够被天然光线影响到的,如许正在镜子里看上去人物才会亮)以及卫生间的洗手台盆区域(洗漱需要的光线),设想师正在考虑结构的时候会尽量削减背光的几率,让功能区域更多接触或者接近天然光。
本来一进门就看到的厅被分隔出了玄关,玄关一曲延长至客堂门,放下了更多的柜子,半高鞋柜能够摆放包包和充电器等;而到顶的鞋柜则能够收纳更多的鞋子,也不消担忧过季鞋子的存放问题了;外衣挂钩还能放置当天搭配好的衣帽。
![]()
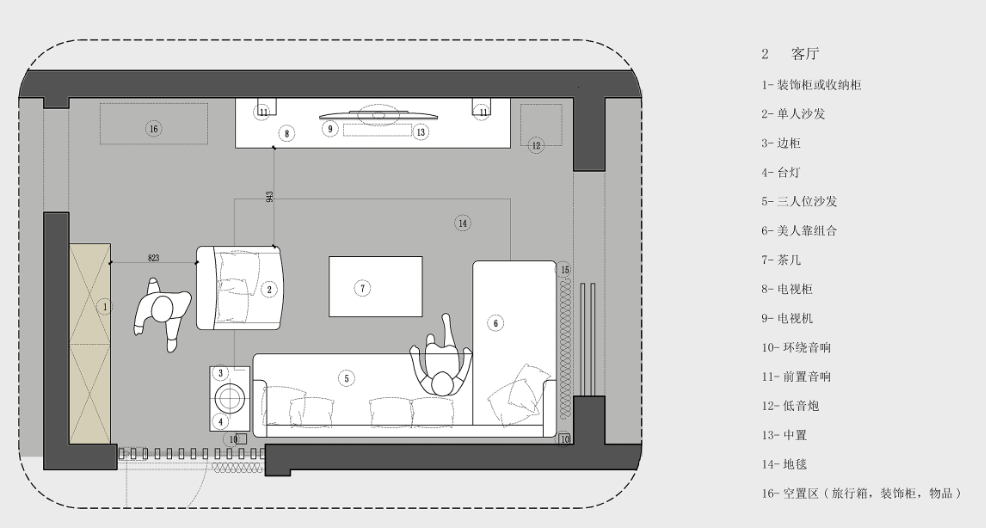
接下来是客堂:1.柜或收纳柜;2.单人沙发;3.边框;4.台灯;5.三人位沙发;6.佳丽靠组合;7.茶几;8.电视柜;9.电视机;10.环抱声响;11.前置声响;12.低音炮;13.中置;14.地毯;15.空置区(放旅行箱、柜或其他物品)。
![]()
![]()
衣帽间和打扮台:1.次要放置折叠物件和厚拆物件的区域;2.次要挂置衣物的区域;3.次要放置旅行用品及其他的物品的区域;4.试衣凳;5.打扮台;6.手机充电;7.无影灯镜;8.化妆凳;9.试衣镜兼做卫生间移门。
案例提到的,走道上有一个定制的距离屏风门是双向的地弹簧门,它同时也是客堂的沙发布景里面的一个形成部门,功能上能够封闭后让从卧室、卫生间和衣帽间合为一个大套间的概念,因为家庭内不需要太强的私密性,因而设想为半通透的形式,不只仅可以或许让客堂空间有延长性,又能表现出格调。
![]()
还有,下面这个房子的户从是一对80后的小夫妻,女仆人是DJ,日常平凡快乐喜爱跳舞和阅读,于是她但愿把9平米的次卧打形成集睡觉、收纳、阅读和练舞为一体的多功能房。我为她打制了一个带镜子的壁床,那么床放下的时候能够睡觉,窗边贴上软包就能够恬逸地读书,床收起来的时候,腾出空间、显露镜子就能够做房来用了。
我们正在设想做这个壁床来处理空间问题的时候,同时也要考虑到它的可行性,由于后背的镜子是不克不及折叠的、本身还有自沉,那么人躺正在床上的时候会不会压到镜子使它爆裂呢?后来我们插手了钢架,床安拆正在钢架上,不会和镜子有间接接触,所以丝毫不影响。
网友【加加嘉嘉是一家】:我家有对龙凤胎,新家筹算给他们一人预备一间房,用一间20多平的大房隔出来,可是现正在他们都还小,又感觉有点为时过早了,现正在不弄吧当前又担忧影响把家里弄得乌烟瘴气,教员您感觉要不要现正在把墙给砌起来好呢?或者有什么其他便利操做的距离法?
