2024年10月18日,数码大方隆重发布CAXA CAD 2025系列新品,包括CAD电子图板、3D实体设计、CAPP工艺图表、CAM制造工程师四大产品线。CAXA CAD 2025新增100多项新功能,进一步优化了以3D为核心的设计、工艺、制造一体化方案,在装备整机设计、零部件设计、来图加工、数控编程等不同应用场景下,应用效率和应用体验都有显著的提升,为企业数字化研发及管理带来了质的飞跃。
100+新增功能,赋能研发效率
数码大方于1992年推出第一代CAXA CAD产品,30余年来,始终将解决用户需求、创造用户价值作为产品开发创新的源动力,通过自主研发和技术创新,不断突破CAD核心关键技术,已经取得了超过130项软件发明专利,打造了自主CAD内核、平台及系列CAD工具集。CAXA CAD 2025新版本在已有的基础上持续创新,新增了100多项新功能,为研发效率的提升注入新动力!
CAXA 3D实体设计2025
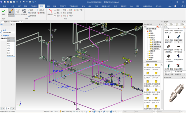
为了降低设计门槛并提升设计效率,CAXA 3D 2025在专用功能模块方面,新增了管路设计模块,完善了组焊件设计模块;在CAE软件中新增了流体分析模块,并引入拓扑优化的方法去优化设计结果;在常用功能方面,钣金批量出图、快速拉伸以及快速输出DXF、DWG等格式方面均进行了优化;针对复杂模型建模,在曲面设计、弯曲变形处理、放样算法及特征分组等方面也都有显著提升。此外,CAXA 3D 2025还强化了装配体的参数化驱动能力,增强了装配体镜像与装配特征功能,并对凸轮约束和宽度约束功能进行了更新,使装配更加便捷高效。

CAXA CAD 电子图板2025
CAXA CAD 电子图板2025有超过50多项新增功能及改进,主要包括:AI识别功能可一键识别文字和表格并提取数据,更好的支持了来图加工场景的应用需求;大图性能方面,重点提升了文件打开保存以及图形编辑的速度;18项绘图新功能及优化,使设计师绘图效率更高,体验更直观友好;标注方面主要包括标注模板库、快速标注、标注对齐等新功能;兼容性及协同方面,新增对DWF、DWFX文件的兼容,以及打印的灰度及淡显,批量输出PDF文件等。

CAXA CAPP工艺图表 2025
CAXA CAPP 2025围绕新模式新体验进行了优化升级。一方面,针对航空行业以及复杂工艺场景,增加了更加灵活方便的新模式,包括动态表格、嵌套表格、多元工序卡以及同步参考等功能。另一方面,深度挖掘用户需求,从功能上进一步提升了用户体验,包括气泡图尺寸提取、参数化工艺简图、图片批量插入、对齐,知识库关联推荐等方面的增强优化。

CAXA CAM制造工程师 2025
CAXA CAM 2025在三大方面实现了升级:一是对功能进行了提升,包括孔加工自动编程,轨迹测量刀库关联,自定义铣刀,新增切断加工;二是对轨迹进行优化,包括,轨迹步距更加均匀,支持最短路径设置,支持轨迹裁剪、轨迹反向、轨迹打断等;三是进行了交互优化,支持输入框智能输入,几何拾取对象顺序调整,车削编程直接拾取模型,多轨迹复制粘贴等。

深耕行业应用,AI带来全新设计体验
CAXA CAD 2025不仅在产品用户体验和性能效率方面实现双重飞跃,更在行业应用特色上进行深度挖掘与拓展。
·来图加工场景
CAXA CAD 2025引入了前沿的AI识别技术,能够智能识别并精准提取图纸中的文字和表格数据,并自动转化为结构化的CAD数据,从而极大地提升了设计工作的智能化与自动化水平。

·产线成套设备设计场景
在产线成套设备设计过程中,新增的管路设计模块和自动管路布路功能,配合丰富的管道零部件库,为用户提供了一站式的解决方案,让设计过程更加流畅、高效。

·大型结构件设计场景
在机床、起重机等各类机械设备制造中,经常用到组焊件设计,CAXA 3D 2025新增的组焊件设计功能可在组焊件设计过程中快速、直观的参考使用其他零件的位置及几何数据,并在设计完成后快速转换为零件,自动输出焊接件的BOM清单,提高设计效率,并对组焊件设计中常用的装配特征和多实体设计功能进行了完善和增强。

·工艺编制场景
工艺编制也得到了显著增强,新增的动态表格和嵌套表格处理能力,以及批量修改气泡图参数和风格的功能,为工艺编制带来了更高的灵活性和效率,让工艺编制过程更加轻松、快捷。

·数控编程场景
数控编程场景中,新增的工艺孔特征自动加工轨迹生成、加工对象拾取优化,以及刀具轨迹仿真智能测量等功能,为数控编程的智能化和安全性提供了强有力的支持。

数码大方深耕工业软件领域三十余年,深研技术,坚持与用户共成长。我们不断精进,致力于提升用户研发效率,通过智能化手段缩短产品开发周期,同时优化设计体验,为用户打造更为直观、高效的设计工具。三十余载的积累,让我们在工业软件领域积累了丰富经验,树立了良好口碑。未来,数码大方将继续与用户携手共进,用自主、强大、好用、易用的工业软件,帮助用户茁壮成长。
