四代同堂,6人共居,60平米的空间,20年囤积的成千上万件“嫁妆”……
“世上本无无用之物,只是放错了位置。”有空间与心灵的净化师之称的张力这样说,那在这个拥挤不堪的家中,如何为每个人、每件物品,找到恰如其分的栖息地?节目官方合作媒体网易家居带你一起围观,看设计师张力如何用设计改变空间,用设计滋润心灵。
![]()
设计师张力和蛋蛋一家
本期的委托人是5个月大的蒋蛋蛋,他和太奶奶、外公、外婆、爸爸、妈妈一起生活在建筑面积为平方米、层高为米的家中,这个多年没有装修的老房子,给一家人的生活,带来诸多烦恼。
>>>改造前:
一、人多空间窄无私密空间
![]()
太奶奶和外公外婆的卧室也是一家人的餐厅
因为家中空间小,蛋蛋的太奶奶和外公外婆,只能挤在一间15平米的卧室中,同时,这里也是家人的客厅和餐厅。再加上,老房子隔音差,老人们的生活几乎无私密性。
二、储物区偏高拿取物品不便
蛋蛋的外公外婆在蛋蛋妈16岁的时候,就开始囤嫁妆,积累了年的“嫁妆”的存储问题,成一大难题。
![]()
除了储藏室,蛋蛋家的储物空间,基本上位于高处,形成两大弊端:1、整个空间变得非常压抑、阴暗;、拿取物品不便,基本上,放进去就不想拿出来,想拿的时候却根本找不到。
三、格局混乱空间利用率不高
卫生间设置在厨房内,无论是做饭还是上厕所,使用起来都很不便。另外,这个不到2平方米的卫生间,还担负洗漱、洗澡、洗衣服、人与猫咪上厕所等功能。
![]()
层高3.25米,这是一个尴尬的高度,无论怎样纵向分割,上下总会有一边高度不舒适。
>>>改造方案:
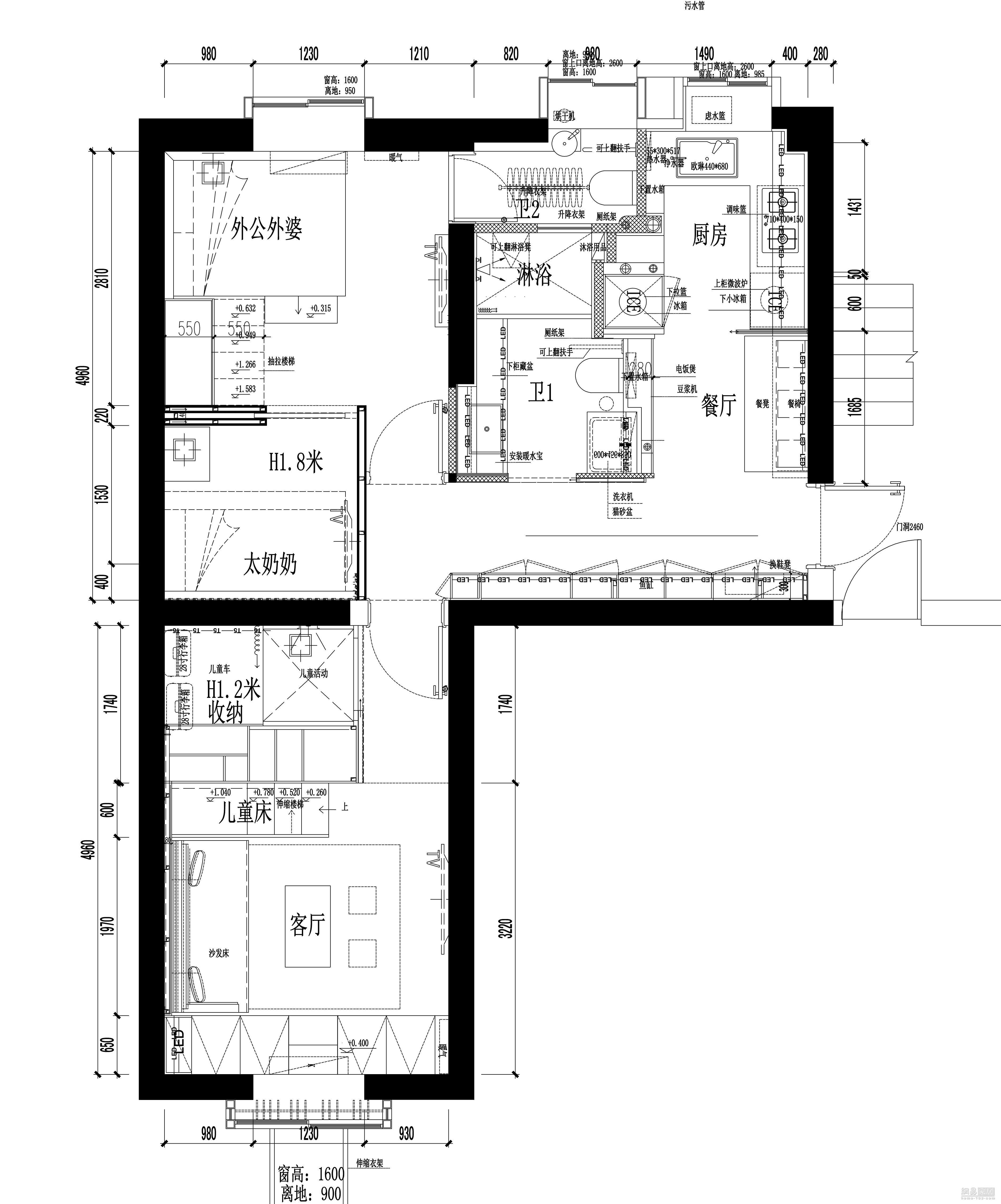
“应该是让房子去适应人,而不是让人去适应房子。”设计师张力说,在空间的改造上,他在满足每一个家庭成员最基本需求的同时,也让家里的每一件物品,都有明确存放的位置,并且一目了然,取用方便。
![]()
蛋蛋的独享天地
蛋蛋太奶奶的身高1.6米,考虑到老人爬高不方便,设计师将空间分割时,下半部分1.8米用作太奶奶的卧室空间,与外公外婆的房间相连,上半部分1.35米为书房。考虑到读书时,大部分时间是坐着,所以,1.35米的高度绰绰有余。
![]()
公共餐厅
基于此,张力把蛋蛋家的格局重新定义,把卫生间、厨房和储物间的一堵墙拆除,将自然光引入走道空间的同时,还将这些小空间彻底打开,形成一个大空间。新厨房的面积由原先的2平米变为平米,比原先大了一倍多。
![]()
为了让四世同堂的一家人享受天伦之乐,张力还划分出生活公共空间,客厅、餐厅都有了“专属”位置。
三、把储物空间分散到各个空间
“没有分类的储藏室是很浪费的。”张力说,为充分利用空间,他将收纳打散到各个空间里。

收纳六口之家的几十双鞋子,也曾是蛋蛋一家头痛的问题,设计师张力却轻松搞定。将防盗门挪移20公分,既解决了与邻居开门冲突的问题,又能在空出的墙面上做超大容量的鞋柜,一石二鸟。
>>>张力简介:
![]()
张力
上海飞视装饰设计工程有限公司创始人&设计总监
国际品牌与设计交流中心设计委员会上海地区执行副会长
国际生态环境设计联盟2016年度十佳杰出设计师
毕业于南京工业大学建筑系的张力,始终以提供创新方案为己任,为每个项目加添前所未有的元素,开启新的可能性。多年的室内空间设计经历,使他的优秀作品遍及各地。
>>>所获奖项:
2016金堂奖年度最佳别墅空间设计奖
2016年度推动中国生态设计贡献奖
2016第十四届现代装饰国际传媒奖年度样板空间大奖
2016第八届中国照明应用设计大赛全国办公类银奖
2016总评榜最佳别墅空间设计
2015IDEA-TOPS艾特奖上海室内设计最佳办公空间设计奖
2015第十三届现代装饰国际传媒奖年度软装陈设空间大奖
2015金堂奖中国室内设计年度优秀办公空间设计奖
2015金外滩奖国际建筑及室内设计节最佳居住空间奖
2015国际生态设计奖精英邀请赛最佳生态别墅空间设计奖
2015亚太室内设计精英邀请赛住宅空间银奖、办公空间优胜奖
2015居然杯CIDA中国室内设计办公空间奖
2015中国室内设计年度封面人物
2015联合国70+华人当代艺术成就奖
>>>对话张力设计师:
网易家居:最初接触到这个项目的时候,最迫切想要解决的问题是什么?如何解决?
张力:最迫切解决的是满足每一个家庭成员的最基本的需求,让每一个人都有相互独立、互不干扰的生活空间。我通过一些上下错层的手法,来解决这个问题。
网易家居:四代同堂,60平米的空间,个人共同生活,如何为每个人打造一个私密空间,同时又划分出共享空间?
张力:他们家有1间专门的带有采光的储藏室,对空间是极大的浪费。储藏室里什么东西都有,冰箱、油盐酱醋、书籍、被褥,取用也非常不方便。
他们家的空间原本就非常小,不能再让储存的部分,占据独立完整的空间,我要做的就是把这个空间释放出来,把存储空间全部打散,利用墙面和高度差,再根据每个家庭成员的身高,为他们量身打造私密空间。
网易家居:本期最大的亮点是什么?有没有限于条件而没有实现的遗憾?
张力:空间的高效利用是最大的亮点,利用3.25米层高的空间,做到完善的起居和收纳。
原来层高很高,但是利用率很低。改造后,空间增加了三个楼梯,第一个放在客厅里,可以平移楼梯,通向上半部的睡眠区域和收纳区域,餐厅的空间也有一个下拉的楼梯,老年的私密空间里也有一部楼梯,而且这些楼梯都可以隐藏。
也有一些遗憾,一方面时间比较紧,设计和施工期,一共只有45天,是一个非常规进度的周期。如果有更多的时间考虑,可能会更加完满一些。有些想要实现的亮点,因为五金件订货周期,或者加工工艺周期长而没能实现。
网易家居:参加本次活动,对您本身带来什么影响?
张力:对我们公司和我本人而言,都成长了不少。在时间很有限的情况下,我们做出了很多的亮点,对于亮点的实施性、落地性和延展性,都有更多角度和层面的认识。
以前我们主做房地产项目,很多设计都是从设计师的角度去看问题,不能与住户面对面购通,对他们的痛点、兴趣点不大了解,客户到底能接受多少,我们也不好掌控。也没有考虑到后期的维护和延展性,现在就不一样了,因为落实到切实的客户家里了。以后会更多的考虑到客户的广泛接受度的问题,从第三方的角度,来考虑问题,才能会更加实际一些。
