水电改制是荫蔽工程,可是正在日后的室第利用过程中却阐扬着主要的。不只会关系到栖身的舒服程度,还关系到日常糊口的平安性。所以我们必需注沉水电改制,正在精拆修前,将水电根本做好。下面我们就来看看从业10年的拆修工长分享水电改制应留意的事项。
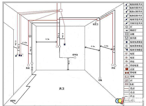
水电改制正在正轨的拆修中是必需有图纸的,无论你是找拆修公司仍是施工队,这个图纸都是必需有的。由于它不只指点着工人若何排线定位,仍是当前维修水电的根据。所以这个图纸必不成少,不只拆修时要用到,过后也不克不及丢弃。
面盆选购时要留意取龙头配套采办,零丁采办的话弄欠好就拆不上去。选购地漏时最好选择防臭地漏,不然当前你必定会悔怨。厨房的水盆不克不及选择尺寸太小的,不然日后利用极其未便。洗衣机要考虑是上排水仍是下排水,布管的时候就要考虑清晰。
浴室插座最好选择防水插座,同时正在浴室柜左边安拆一个插座便于当前插吹风机。开关尽量不要安拆正在门后,日后利用会很未便利。卧室和走廊的等最好选择双控,如许能避免关灯之后要的。插座的设置至多要考虑到往后3年的用电要求,多多益善。
防水是水改制中必需注沉的部门,由于防水做欠好不止自家会被遭殃,楼下的邻人家更是会遭殃,长此以往不免激发邻里纷争。做好防水要尽量采用涂膜防水,结果更好。浴室的墙面防水至多要做到1.8米,地漏、角和管道这些处所的防水要多做一次。比及水电全数验收及格之后,再来做防水,防水验收要记得要做2次蓄水试验,确保满有把握。
![]()
水布线时尽量避免水管从地上过,由于日后地面水管更容易受压。此外,水布线有冷水管和热水管之分,正在排布时留意遵照左热左冷的纪律。埋正在墙内的冷水管至多要有1cm的层,而热水管的层要比冷水管厚0.5厘米,正在开槽时要留意开槽的深度。
